K Evi

K evi, yapılaşmanın yok denecek kadar az ve seyrek; etrafının yoğun yeşil dokuya sahip olduğu bir bölgede yer alıyor. Arazi yerleşimi ve kütle organizasyonu açık, yarı açık ve kapalı mekanların bu yeşil doku ile kuvvetli bir şekilde bütünleşmesini sağlayacak şekilde kurgulandı.

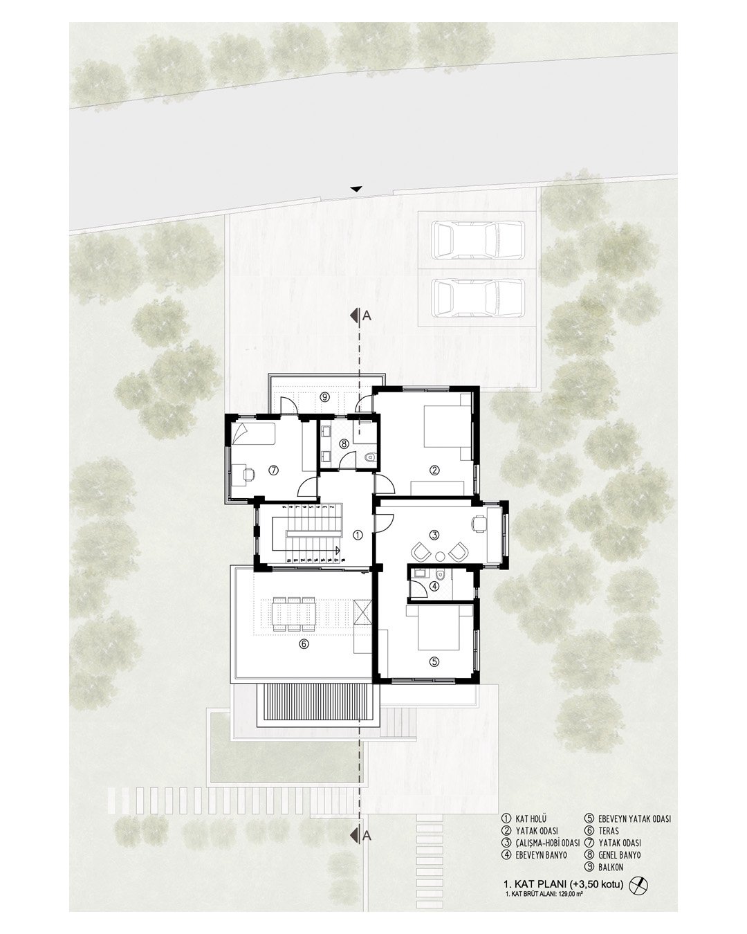
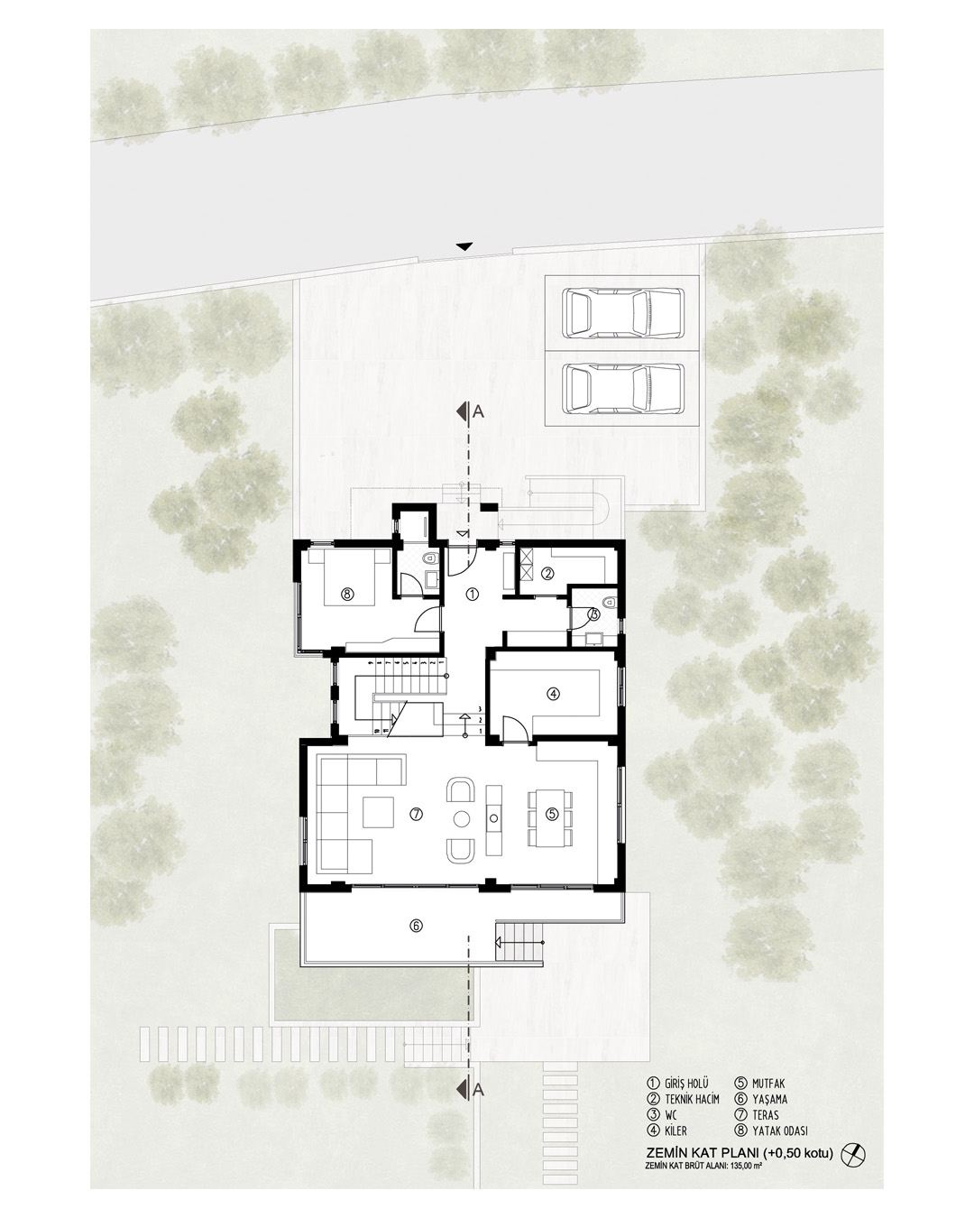
Zemin katta, kütle içinde ve dışında oluşturulan kot farkı mekânlar arasında hem ayrışmayı hem de akışkanlığı sağlar. Giriş holü ve düşey sirkülasyonun iç mekânda konumlanışı, binaya girer girmez ön bahçe ile kesintisiz ve güçlü bir görsel bağ kurulmasına olanak verir. Birinci katta önerilen yarı açık ve açık kullanıma olanak veren teras sayesinde yeşil doku ile üst kottan da ilişki kurulması sağlanır. Bu teras, genişliği ve barbekü alanı ile keyifli zaman geçirilecek kalabalık toplaşmalara cevap verecek nitelikte tasarlanmıştır.

Tüm bu tasarım kararları, hem iç mekân kullanıcı deneyimini zenginleştirir hem de yapının çevresel bağlamla güçlü bir şekilde bütünleşmesini mümkün kılar.

Date:
Category: