













Mezitli Belediyesi Aktif Yaş Alma Merkezi
Mezitli İlçesi sınırlarında bulunan Aktif Yaş Alma Merkezi binası hem toplu taşıma hem de çevredeki mahallelerden kolaylıkla yaya ulaşımına sahiptir. Bu merkezde kentte yaşayan tüm yaş gruplarının bir araya gelmesi, insanlar arasında sosyalleşmenin arttırılması, belirli sağlık hizmetlerinin verilebilmesi ve Mezitli İlçesi için alternatif bir etkinlik alanı oluşturulması hedeflenmiştir. Bu sayede, özellikle ileri yaştaki kentlilerin sosyal hayattan kopmaması sağlanırken, düzenlenecek etkinliklerle toplum ve kent yaşamında aktif bir rol üstlenmeleri desteklenmektedir.
Yapısal olarak sürdürülebilirlik kriterlerini karşılayan yapı, yer yer boşluklu tuğla duvar sistemi ile hem iç mekâna kontrollü ışık ve hava girişini sağlamakta hem de bölge vernaküler mimarisinde sıkça görülen boşluklu duvar geleneğine atıfta bulunmaktadır. Farklı kotlarda tasarlanan çatılar yeşil çatı olarak düzenlenmiş; arsanın güney kısmındaki yarı açık ve açık alan ise mevcut ağaçlar korunarak yeni peyzajla bütünleştirilmiştir.
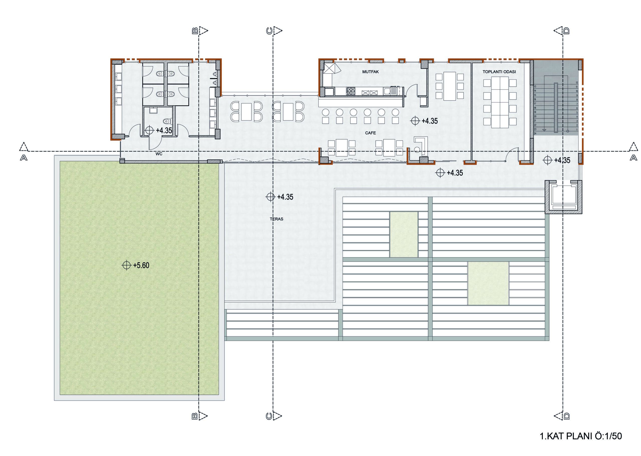
Yapı programında çok amaçlı salon, toplantı odası, ofis, kafe ve orta yaş üzeri kullanıcılar için bir doktor odası yer almaktadır. Çok amaçlı salon ve dış mekânla ilişki kuran fuaye, kentlilerin çeşitli etkinliklerini gerçekleştirebileceği konforlu bir kullanım sunmaktadır.
